Design Changes? RFIs?
We Find Them First.
Drawings that answer your questions and flag RFIs before they cost you.

With just a PDF, Fieldworks AI helps General Contractors manage construction drawings, highlight design changes, answer questions, and auto-generate RFIs.
Custom AI to find RFIs
Trained on thousands of drawings, Fieldworks AI is built for construction.

Design changes, visualized
Automatically detect and highlight design changes in your drawings across revisions.

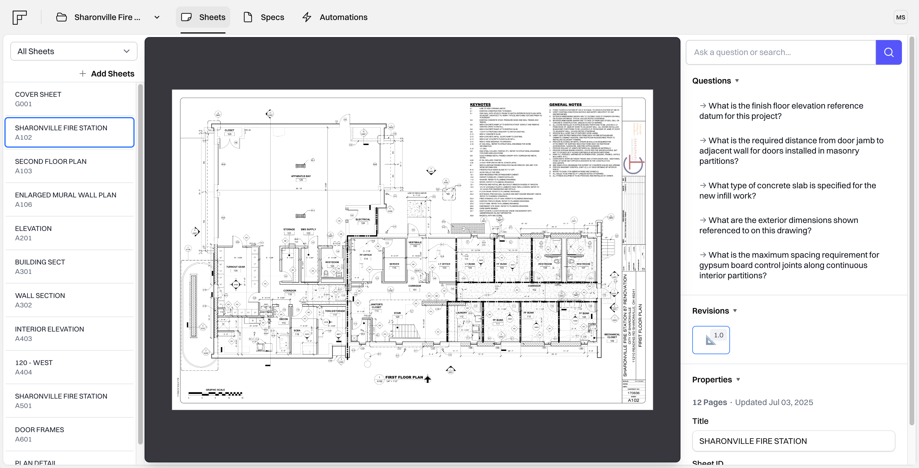
Intelligent viewer and annotations
Ask questions across all your files and annotate drawings with a clean, intuitive interface.

How It Works
Custom AI trained for Construction.
Step 1
Securely Upload Your PDFs
Easily upload drawings, specifications, and more to Fieldworks — protected with industry-leading data security.
Step 2
AI Reads Your Drawings
Using the latest computer vision techniques, we automatically extract key data from your drawings, like Sheet ID and Title, transforming unstructured files into usable information.
Step 3
Cross Reference Sheets and Schedules
No more jumping between drawings, specifications, and schedules. Fieldworks can match and pull it all together for you in one view.
Step 4
Generate RFIs
Let AI do the work for you. Fieldworks automatically generates RFIs based on your drawings and specifications.
Design Changes
Automatically detect design changes across revisions.
Fieldworks AI automatically detects design changes in your drawings, so you can focus on what matters most.
Automate sheet versioning
Fieldworks matches drawings by Sheet ID to give you automatic versioning and slip-sheeting. Flip through old revisions with one click.
Visualize changes with overlay
Overlay two revisions of a drawing to see exactly what changed. Fieldworks highlights the differences for you.
Intelligent Viewer and Annotations
Ask questions
We generate tailored questions for every page of your drawings, helping you anticipate challenges, optimize resources, and make informed decisions effortlessly. Stay ahead with proactive insights that drive project success.
Get answers you can trust
Every generated response shows you the source of truth, so you can verify the accuracy of the information. Fieldworks is your trusted partner in making informed decisions.
Tools you can use today.
No sales call, no onboarding, no BS. Just the tools you need to get the job done.
